
Котел КВа 0.23 в Коврове
Цена 325 000 рублей с НДС
Модель работает с отечественными горелками EMMA и импортными горелками UNIGAS, WEISTHAUPT, Oilon, ECOFLAM.
Также наш завод выпускает модели котлов данной мощности работающие с российскими горелками марки РГМГ, ГБЛ, ГМ, ГМГ, АПНД, ГГ. Их стоимость вы можете уточнить в отделе сбыта.
Котел для площади помещения от 1300 до 2500 м2, отапливаемый объем помещения от 4000 до 7500 м3. Температура 115 °С.
Бренд | HeatExpert | Аэродинамическое сопротивление, Па (мм. вод. ст.) | 220 |
---|---|---|---|
Марка котла | Котел КВа Г, Котел КВа ГН, Котел малой мощности, HeatExpert | Разряжение в топочной камере, Па (мм. вод. ст.) | 20-40 (2-4) |
Вид топки | Под горелку | Расход уходящих газов, м³/ч | 500 |
Максимальная тепловая мощность, кВт | 230 | Температура уходящих газов, °C | 158 |
Максимальная тепловая мощность, МВт | 0.23 | Тяга | Принудительная |
Максимальная тепловая мощность, Гкал | 0.2 | Водяной объем котла, л | 250 |
Диапазон регулирования мощности, кВт | 40-100 | Объем топочной камеры, м³ | 0.46 |
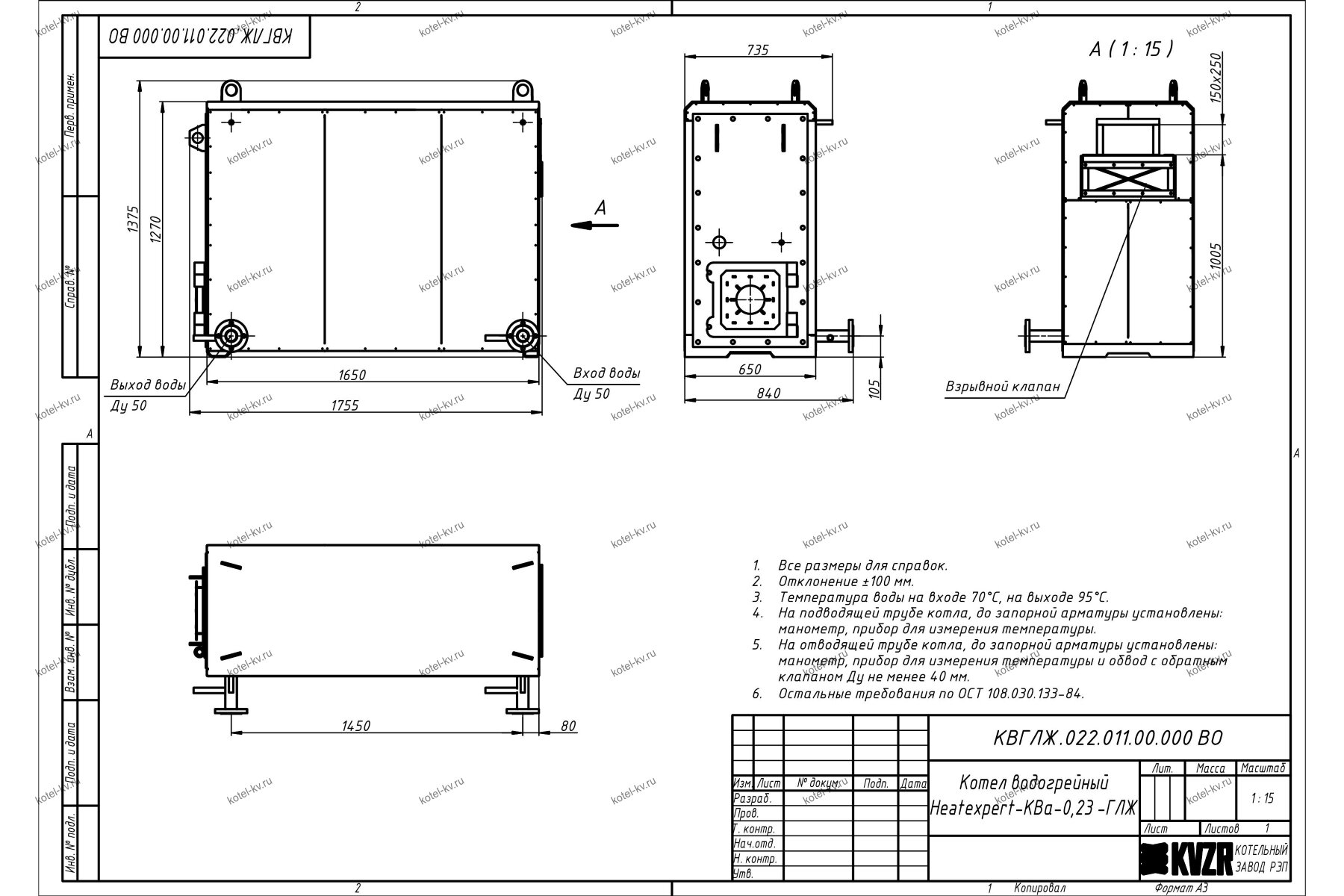
Топливо | Газ | Размер топочной камеры, длина*ширина*высота, мм | 1450х450х700 |
Низшая теплота сгорания топлива ГАЗ, кКал/нм³ | 9400 | Присоединительные размеры по водяному тракту, Ду | 50 |
Низшая теплота сгорания топлива ДИЗЕЛЬ, кКал/кг | 10200 | Присоединительные размеры газохода уходящих газов, ширина*высота / сечение, мм/м² | 250х150/0.04 |
Низшая теплота сгорания топлива МАЗУТ, кКал/кг | 9260 | Габаритные размеры котельного блока, длина*ширина*высота, мм | 1755х840х1375 |
КПД (ГАЗ), не менее, % | 91.5 | Масса, кг | 650 |
КПД (ДИЗЕЛЬ), не менее, % | 91.8 | Тип котла | Водогрейный, Промышленный |
КПД (МАЗУТ), не менее, % | 91.6 | Тип отопительного котла | Газовый |
Расход топлива среднечасовой за отопительный сезон, кг/ч | 13 | Количество контуров | Одноконтурный |
Расход топлива при максимальной нагрузке котла (ГАЗ), м³/ч | 23 | Размещение | Напольный |
Расход топлива при максимальной нагрузке котла (ДИЗЕЛЬ), кг/ч | 21 | Тип камеры сгорания | Закрытый |
Расход топлива при максимальной нагрузке котла (МАЗУТ), кг/ч | 24 | Управление | Электронное |
Расход условного топлива, кг/ч | 31 | Принцип работы газового котла | Конвекционный |
Отапливаемая площадь, м² | 1300-2500 | Энергонезависимый | нет |
Отапливаемый объем, м³ | 4000-7500 | Тип питания | Трехфазное |
Давление рабочей среды, МПа (кгс/cм²) | 0.3-0.6 | Встроенный циркуляционный насос | нет |
Расход теплоносителя среды, м³/ч | 8 | Встроенный расширительный бак | нет |
Гидравлическое сопротивление при перепаде t, МПа (кгс/cм²) | Не более 0.07 (0.7) | Энергоэффективность | Высокая |
Это устройство работает со вспомогательным оборудованием, которое приобретается отдельно. Если вы хотите сразу узнать стоимость всей установки, добавьте заинтересовавшие вас позиции в корзину. Чтобы точно расчитать стоимость доставки до вашего объекта, укажите его адрес в корзине и оправьте нам заявку. Обычно мы отвечаем в течение дня.
Котел КВа 0.23
Водогрейный котел КВа 0.23
Промышленный котел КВа 0.23 МВт
Котел КВа 0.23 изготовление
Котел КВа 0.23 производство
Водогрейный котел КВа 0.23 в г Ковров. Характеристики:
- мощность 230 КВт, 0,23 МВт, 0,2 ГКал;
- температура нагрева воды 95 - 115 градусов;
- топливо – газ; жидкое; дизель, мазут, отработанное масло;
- горелка – импортная/отечественная;
- давление не более 0.6 МПа;
- отапливаемая площадь котла от 1300 до 2500 кв м, отапливаемый объем от 4000 до 7500 м3 (в зависимости минимальной температуры в регионе эксплуатации). Проверить или подобрать мощность котла КВа для Коврова или любого другого города вы можете по ссылке.
- устанавливается в котельных административных, производственных зданий, отопительных котельных ЖКХ и блочно модульных котельных.
Горелки водогрейных котлов КВа 0.23 МВт
Отечественные котлы КВа могут работать с горелками импортного производства таких производителей
- UNIGAS;
- WEISTHAUPT;
- Oilon;
- ECOFLAM;
а также с российскими горелками марки РГМГ, ГБЛ, ГМ, ГМГ, АПНД, ГГ.
Устройство и описание отопительного котла 0.23 МВт на газовом топливе и жидком топливе
Конструкция теплогенератора состоит из двух блоков - топки и конвективной части. На фронте котла КВа 0,23 изготавливается дверка для обслуживания топочной камеры.
В дверке изготавливается отверстие с креплением под горелку. Для наблюдения за топочным процессом, имеется гляделка со смотровым стеклом. Горячие газы выходят из топки вверху топочной камеры и поступают в конвективные секции. Секции конвективных пакетов устанавливаются блоком. Горячие газы из котельного блока выходят в задней части сверху
Циркуляция промышленного котла КВа 0.23 обеспечивает быстрый нагрев воды и выход на требуемую мощность. Локальные перегревы отдельных зон поверхностей нагрева исключаются точностью производимых расчетов гидравлики. Дренажи и воздушники производят дренирование трубной системы от шлама и удаление скапливающего воздуха.
Принцип работы водогрейного котла КВа 0.23
Топливо сгорает в топке. Горячие газы омывают трубную систему и нагревают воду до 115 градусов.
Циркуляция воды в котельном агрегате производится циркуляционным насосом. Для восполнения теплоносителя, теряемого при дренировании и в теплосети, производится подпитка подпиточным насосом.
Для горения топлива вентилятором в топку подается воздух. Дымовые газы проходят трубную систему котельного блока и поступают в газоходы котельной. При работе с импортными горелками под наддувом установка дымососа не требуется. После газоходов газы через дымовую трубу поступают в атмосферу.
Водно-химический режим водогрейного котла должен быть организован в соответствии с требованиями руководства по эксплуатации и нормативной литературы по тепловым энергоустановкам и тепловым сетям. Для подбора водоподготовительной установки требуется провести химический анализ воды.
Все котельно-вспомогательное оборудование для подключения промышленного котла КВа-0.23 в Коврове вы можете купить на нашем котельном заводе. Также наш завод оказывает услуги по проектированию, монтажу, шеф монтажу и пуско-наладке котельных.
Безопасность котла
Безопасная эксплуатация котла обеспечивается выполнением требований:
- Инструкции по эксплуатации
- Правил устройства и безопасной эксплуатации водогрейных котлов с температурой нагрева воды не выше 115 °С
- Правил технической эксплуатации тепловых энергоустановок
Требования к помещениям котельной регламентируются СП 89.13330.23016 «Котельные установки»
Водогрейный котел КВа 0,23 должен управляться автоматикой безопасности, имеющей сертификат соответствия.
Одним из самых важных устройств, обеспечивающих безопасную эксплуатацию производственного водогрейного котла КВа, является предохранительный клапан. Расчет пропускной способности для каждой мощности приведен в паспорте котла.
Гарантии изготовителя
На заводе изготовителе промышленный котел КВа 0.23 подвергается гидравлическому испытанию давлением 0,9 МПа (9 кгс/см2).
Гарантийное обслуживание включает в себя бесплатное устранение скрытых заводских дефектов, замену деталей и узлов вышедших из строя в период гарантийного срока при условии монтажа и эксплуатации оборудования Покупателем в соответствии с его назначением, технической документацией, техническими нормами, правилами ввода в эксплуатацию и эксплуатации данного оборудования.
Производство котлов КВа 0.23 МВт на заводе осуществляется в срок от 10 до 20 рабочих дней.
Срок эксплуатации водогрейного котла 10 лет.
Купить Котел КВа 0.23 в Коврове
Промышленный водогрейный котел КВа-0,23 ( - мощность 0,23 МВт; - топливо газ; - температура 115 градусов; - отапливаемая площадь* от 1300 до 2500 м2; - отапливаемый объем* от 4000 до 7500 м3 (* диапазон для самого холодного и самого теплого региона РФ)); - применение для отопления производства, жилых зданий, цехов, складов, промышленных предприятий, теплиц, гаражей, больниц, школ, садов.
Предлагаем вам подобрать мощность водогрейного промышленного котла по отапливаемой площади и объему, с учетом типа строения и данных о температуре в регионе и в Коврове, вида топлива.
Выбор водогрейного котла для котельной производится по каталогу отопительного оборудования нашего Котельного завода с помощью калькулятора подбора мощности. Водогрейные котлы отопления для промышленных предприятий предлагается выбрать из модельного ряда газовых, дизельных, мазутных, твердотопливных угольных и дровяных котлов, с ручными и автоматическими топками мощностью от 150 кВ до 4 МВт, и температурой нагрева теплоносителя до 115 градусов.
Подбор мощности водогрейного промышленного котла для отопления учитывает:
- температуру в самую холодную пятидневку в отопительный сезон. Для каждого региона РФ температура различна, данные берутся из СП 131.13330 «Строительная климатология»;
- тепло, необходимое для возмещения потерь тепла через ограждения, окна, двери здания и тепловые потери через не плотности строения и открываемые двери;
- температуру воздуха внутри помещений. Для различных типов и назначений строений она существенно отличается:
Тип отапливаемого строения | Температура внутри помещения |
---|---|
Жилые строения и административные здания | + 20 С° |
Больницы, детские сады | + 22 С° |
Учебные заведения, предприятия общепита, учреждения культуры, школы | + 16 С° |
Магазины и депо | + 15 С° |
Кинотеатры | + 14 С° |
Гаражи | + 10 С° |
Бани | + 25 С° |
- объем строения. Для определения наружного объема строения площадь по наружным стенкам строения на уровне первого этажа перемножается на высоту. Для панельных домов высота определяется: от уровня пола (нулевой отметки) до верхней плоскости теплоизоляционного слоя чердачного покрытия. Для остальных зданий высота определяется от уровня земли. Подбор мощности для отопления различных по назначению строений считается отдельно. Все полученные значения мощности складываются.
Подбор мощности водогрейного промышленного котла производится для общей суммарной мощности каждого отдельно стоящего задания.
Если вам требуется подобрать мощность котла в Коврове для котельной с учетом вентиляции здания, горячего водоснабжения объекта, потерь в теплотрассе - необходимо производить более подробный расчет. Данный расчет мы можем произвести для вас бесплатно. Отправьте опросный лист и заявку на электронный адрес sale@kotel-kv.ru или позвоните по телефону 8 (800) 551-70-98.